SIEDLUNG KREUZFURTH
Denkmalpflegeplan einer Siedlung mit 21 Wohneinheiten
Denkmalpflegeplan einer Siedlung mit 21 Wohneinheiten

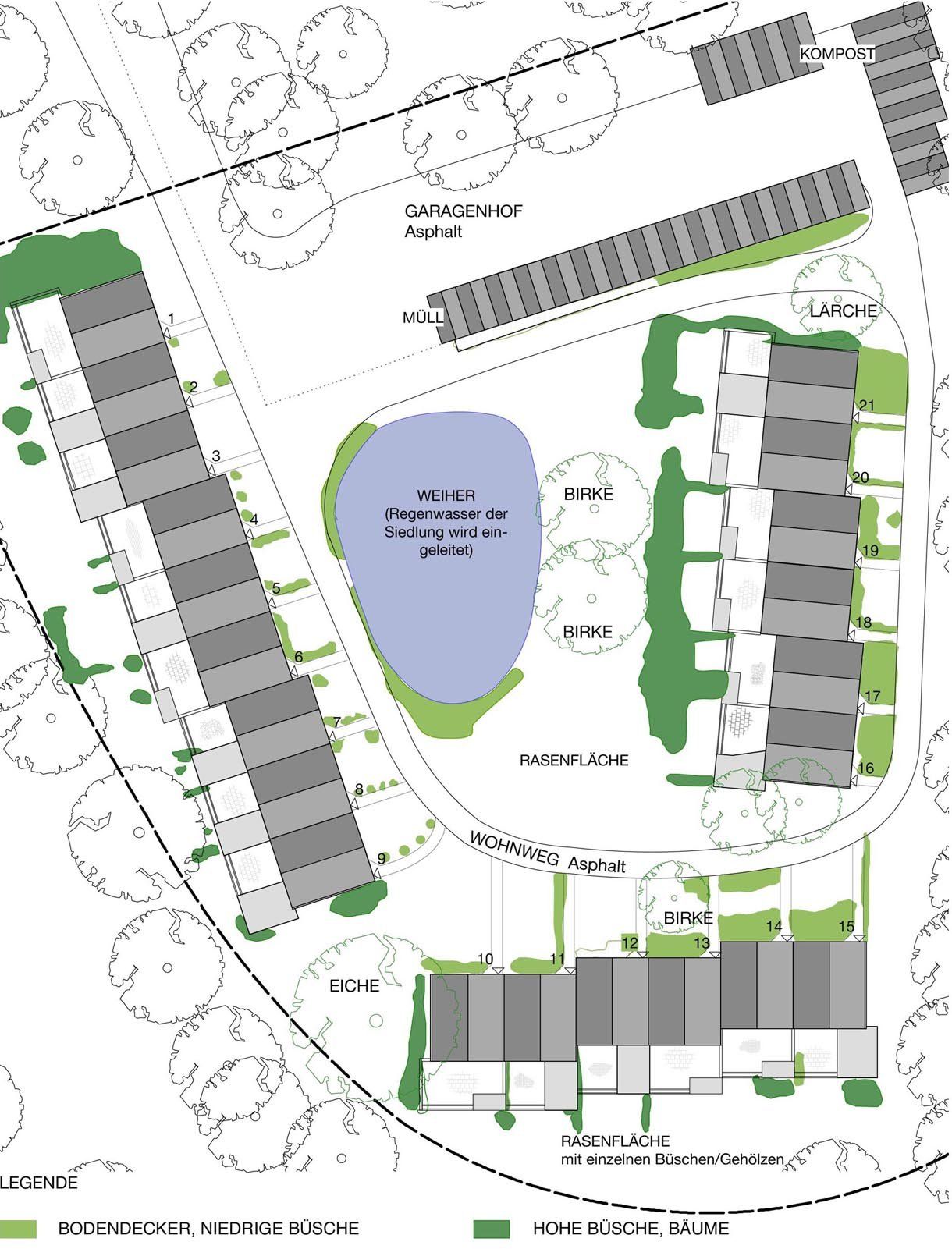
Die von den Architekten Atmer und Marlow im Jahr 1957 geplante Wohnsiedlung Kreuzfurth umfasst 21 Wohneinheiten, die in drei Reihenhauszeilen um einen Weiher gruppiert und über einen ringförmigen Wohnweg erschlossen sind. Die Architektur weist starke skandinavische Einflüsse auf, Arne Jacobsen galt als großes Vorbild für Marlow. 1960 wurde die Siedlung in der Hamburger Morgenpost als "schönste Wohnsiedlung" in ganz Hamburg bezeichnet. Sie galt in der Architektenszene als hochanerkannt.
Die Siedlung steht heute unter Denkmalschutz und ist ohne einschneidende Veränderungen erhalten.
Der erarbeitete Denkmalpflegeplan dient dazu, das Erscheinungsbild dieser in ihrer Art einzigartigen Siedlung in seiner Einheitlichkeit und Qualität zu erhalten, und Erneuerungen und Modernisierungen behutsam durchzuführen, ohne den Charakter des Ensembles zu beeinträchtigen.





